Galerie öffnen
Wohnen in Hannover

Kom­plett sanierte Woh­nung – zeit­gemäß, ele­gant und bezugsfertig

Baujahr
1956
Wohnfläche
52 m²
Zimmer
2
Schlafzimmer
1
Badezimmer
1
Etage
1
Wohnen in Hannover

Objektbeschreibung

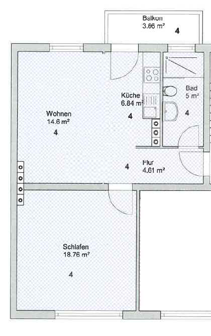
Die vollständig sanierte 2-Zimmer-Wohnung befindet sich im 1. Obergeschoss eines gepflegten Mehrfamilienhauses mit zehn Wohneinheiten und präsentiert sich in einem modernen, hochwertigen Zustand.

Die Wohnung besteht aus zwei Wohn- bzw. Schlafzimmern, einem Arbeits- oder Kinderzimmer, einer separaten Küche mit Fenster und Zugang zum ruhigen Balkon zum Innenhof, einem Tageslichtbad mit Dusche sowie einem zentralen Flur.
Im Zuge der Sanierung wurden die komplette Elektroinstallation (inkl. Leitungen, Sicherungskasten, Schalter und Steckdosen), sämtliche Wasser- und Abwasserleitungen sowie alle Heizkörper erneuert.

Die Wohnung verfügt über ein neues, modern ausgestattetes Badezimmer, Echtholzparkett in den Wohnräumen und im Flur, sowie Fliesen im Bad. Neue 3-fach verglaste Kunststofffenster, moderne Innentüren in Weißlack-Optik sowie glatt gespachtelte, weiß gestrichene Wände und Decken sorgen für ein harmonisches Gesamtbild.

Auch der Balkon wurde vollständig modernisiert und erhielt neue Terrassenplatten, eine erneuerte Metallabdeckung und einen frischen Anstrich.
Die Wohnung bietet damit einen hochwertigen, zeitgemäßen Wohnstandard und besticht durch ihre helle Atmosphäre, die moderne Ausstattung und die ruhige Lage des Balkons zum Innenhof.

Wohnfläche & Zimmer
Objektart
Wohnen
Zimmer
2
Schlafzimmer
1
Etage
1
Wohnfläche ca.
52 m²
Bausubstanz
Baujahr
1956
Objektzustand
FIRST_TIME_USE_AFTER_REFURBISHMENT
Energie
Heizungsart
Fernwärme
Energieausweis
Bedarfsausweis
Energieträger
Fernwärme
Kosten
Kaufpreis
216.888,00 €
Provision für Käufer

2,975 % inkl. 19% MwSt

Sonstiges

• Energieausweis und weitere Unterlagen liegen zur Besichtigung vor.

Damit wir Ihre Anfrage zügig bearbeiten können, bitten wir Sie, uns Ihre vollständigen Kontaktdaten zu übermitteln. Bitte haben Sie Verständnis, dass unvollständige Anfragen leider nicht berücksichtigt werden können. Wir freuen uns darauf, Ihnen das Objekt persönlich vorstellen zu dürfen!

Alle Angaben beruhen auf Informationen Dritter, die wir nach Möglichkeit sorgfältig geprüft haben. Eine Gewähr für die Richtigkeit und Vollständigkeit kann jedoch nicht übernommen werden. Irrtümer und Zwischenverkauf bzw. -vermietung bleiben vorbehalten.

Vertrieb & Finanzierung

Immobilienvertrieb

Ihr Ansprechpartner

Tim Meyer

T +49 511 54688750
tim.meyer@nowliving.de

Lage

Adresse

Die Wohnung befindet sich in zentraler Lage von Hannover-Mitte, mit sehr guter Anbindung an den öffentlichen Nahverkehr und kurzen Wegen in die Innenstadt sowie zum Hauptbahnhof. Einkaufsmöglichkeiten, Dienstleister und Gastronomie befinden sich in unmittelbarer Nähe und sind schnell fußläufig erreichbar. Parks und Grünflächen im Umfeld bieten zusätzliche Erholungsmöglichkeiten. Die Lage verbindet eine ruhige Wohnumgebung mit der komfortablen Infrastruktur der City – ideal für urbanes Wohnen mit hoher Lebensqualität.

Ausstattung

Ausstattung

• vollständig sanierte Wohnung
• separate Küche mit Fenster und Balkonzugang
• Balkon zum ruhigen Innenhof
• modernes Tageslichtbad mit Dusche
• neue Elektroinstallation (inkl. Leitungen, Sicherungskasten, Schalter, Steckdosen)
• erneuerte Wasser- und Abwasserleitungen
• neue Heizkörper
• Echtholzparkett in Wohnräumen und Flur
• moderne Fliesen im Bad
• 3-fach verglaste Kunststofffenster
• neue Innentüren in Weißlack-Optik
• glatt gespachtelte, weiß gestrichene Wände und Decken
• Balkon mit neuen Terrassenplatten, erneuerter Metallabdeckung und frischem Anstrich

Kontakt

Jetzt Exposé anfordern

Sie wünschen mehr Informationen zu diesem Objekt oder haben Fragen?
Nehmen Sie jetzt Kontakt mit uns auf, wir helfen Ihnen gerne weiter.

    Einverständnis

    *Die abgesendeten Daten werden nur zum Zweck der Bearbeitung Ihres Anliegens verarbeitet. Weitere Informationen finden Sie in unserer Datenschutzerklärung.Diese Website ist durch reCAPTCHA geschützt und es gelten die Datenschutzbestimmungen und Nutzungsbedingungen von Google.